2 BEDROOM FURNISHED APARTMENT FOR RENT IN BENCZÚR STREET – VI. DISTRICT
A furnished 2-room + spacious dining-kitchen property for rent in the VI. District – Benczúr Street
Excellent location in the heart of the Diplomatic Quarter, quiet environment, yet a city center feel.
Parameters:
– Imposing, beautiful condition, 3-story, upper-middle-class house with elevator
– II. 1st floor, bright, street view, W-oriented apartment
– 87 m², elegant space planning
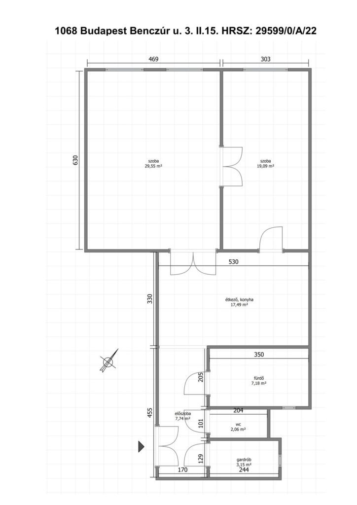
Layout:
– dining room + kitchen
– 2 separate rooms
– wardrobe / storage room
– separate toilet
– bathroom
Technical content:
– gas central heating, radiator heat transfer
– refrigerator-heater air conditioning
– furnished
Costs:
– Common cost: 30,000 HUF / month (including water consumption)
Atmosphere & quality:
– sophisticated, bourgeois interior
– 395 cm ceiling height, elegant wallpapers
– particularly high-quality equipment and lifestyle
Location:
– Kodály körönd direct near
– prestigious side street parallel to Andrássy Avenue
– quiet, green environment, exclusive diplomatic quarter atmosphere
– particularly classy street, sophisticated residential community, representative environment
Transportation:
– M1 underground (Kodály circle) a few minutes walk
– several bus and trolley lines available
– quick and convenient access to the city center
– excellent both by car and public transport

















